Terrarium House tọa lạc tại khu Ladprao, Bangkok, trên khu đất đặc biệt hình dạng như chiếc muỗng, lối tiếp cận chỉ rộng 3m và bị bao quanh bởi nhà ở lân cận. Thay vì xem đó là bất lợi, kiến trúc sư đã biến những giới hạn ấy thành điểm khởi đầu cho không gian sống hướng nội, yên tĩnh và bền vững.
Một số giải pháp thiết kế nổi bật của Terrarium House
-
Tổ chức không gian hướng nội, xoay ngôi nhà quanh sân trong để tách biệt khỏi đô thị xung quanh.
-
Giữ lại và đưa cây xanh vào lõi công trình, biến thiên nhiên thành trung tâm của không gian sống.
-
Sử dụng vách kính cong và trần cao gấp đôi để mở rộng chiều sâu thị giác và kết nối các tầng.
-
Khai thác ánh sáng tự nhiên thụ động qua sân trong, tạo chuyển động sáng - tối theo thời gian.
-
Áp dụng kết cấu khung thép kết hợp gỗ tự nhiên, tạo mái không cột chắc chắn.
Sân trong trung tâm là “trái tim” của nhà 2 tầng Terrarium House
Thay vì mở rộng về phía bên ngoài, Terrarium House tổ chức xoay quanh sân trong trung tâm - yếu tố định hình toàn bộ không gian. Những cây xanh trên khu đất được giữ lại và đặt vào vị trí cốt lõi của ngôi nhà, trở thành trung tâm của tổng thể thiết kế nhà 2 tầng, thu hút ánh nhìn của tất cả mọi người.
Hình khối mái cong ôm trọn sân trong, che chắn công trình trong bối cảnh đô thị. Những khoảng mở tròn đưa cây xanh và ánh sáng len sâu vào lõi ngôi nhà
Các ô mở trên mái cho phép cây xanh vươn lên tự nhiên, trở thành một phần của kiến trúc. Thiết kế này giúp sân trong luôn thông thoáng và giàu sinh khí
Không gian sinh hoạt xoay quanh sân trong trung tâm, mở rộng bằng hệ vách kính cong. Ánh sáng tự nhiên được dẫn dắt nhẹ nhàng vào nội thất gỗ ấm áp
Xung quanh khu vườn bao bọc bằng hệ vách kính cong, tạo cảm giác như đang sống bên trong một “tủ kính” trưng bày thiên nhiên. Ở đó, cây xanh không chỉ để nhìn ngắm mà còn hiện diện xuyên suốt trong đời sống thường nhật.
Sân trong đóng vai trò như một nguồn sáng thụ động, cho phép ánh nắng len lỏi qua từng tán lá trước khi lan tỏa vào không gian nội thất. Khi mặt trời di chuyển, những mảng sáng - tối thay đổi liên tục trên sàn và vách gỗ, giúp ngôi nhà không ngừng biến chuyển theo thời gian. Nhờ đó, dù bị bao quanh bởi nhà ở lân cận, Terrarium House vẫn giữ được cảm giác thoáng đãng và tách biệt khỏi đô thị bên ngoài.
Các không gian sinh hoạt bố trí xoay quanh lõi xanh này, duy trì sự kết nối trực tiếp với thiên nhiên từ mọi góc nhìn. Sân trong không chỉ là yếu tố cảnh quan, mà trở thành một “nhịp thở” của ngôi nhà, điều tiết ánh sáng, vi khí hậu và cảm xúc, giúp không gian sống bên trong luôn cân bằng và chậm rãi.
>>> Xem thêm: Gia chủ xây nhà 2 tầng 140m2, bố trí 3 sân vườn đan xen các phòng công năng hợp lý
Các ô mở mái bố trí có chủ ý để đón nắng theo từng thời điểm trong ngày. Ánh sáng khi lọc qua tán lá tạo nên những mảng sáng - tối biến đổi liên tục
Từ bên trong, ranh giới giữa kiến trúc và cảnh quan gần như biến mất. Sân trong đóng vai trò như vùng đệm, giữ sự riêng tư nhưng vẫn thoáng đãng
Từ sân trong nhìn lên, các đường cong mái và vách kính tạo cảm giác liền mạch, không góc cạnh. Ánh sáng và tán cây đan xen, làm mềm toàn bộ không gian
Hệ vách kính cong bao bọc khu vườn như một “tủ kính” trưng bày thiên nhiên. Cây xanh lúc này trở thành bạn đồng hành trong sinh hoạt hàng ngày
Tán cây và ánh sáng len lỏi vào từng góc sinh hoạt. Không gian sống nhờ đó luôn giữ được cảm giác dịu nhẹ và cân bằng
Sân trong không chỉ là yếu tố cảnh quan mà là “nhịp thở” của ngôi nhà. Tại đây, ánh sáng, vi khí hậu và cảm xúc được điều tiết một cách tự nhiên
Sân trong trở thành điểm kết nối thị giác giữa các tầng. Dù di chuyển ở bất kỳ cao độ nào, thiên nhiên vẫn luôn hiện diện trong tầm nhìn
Terrarium House thiết kế trần cao, kết cấu khung thép kết hợp gỗ mộc mạc
Không gian nội thất của Terrarium House gây ấn tượng mạnh mẽ bởi cảm giác rộng mở được tạo nên từ cách tổ chức trần cao và sự liền mạch giữa các tầng. Khu vực sinh hoạt chung thiết kế trần cao gấp đôi, kết nối trực tiếp với tầng trên thông qua hệ vách kính cong, xóa nhòa ranh giới giữa tầng một và tầng hai. Nhờ đó, ánh sáng từ sân trong có thể lan tỏa sâu vào toàn bộ ngôi nhà, tạo nên chiều sâu thị giác và cảm giác thoáng đãng hiếm thấy trong bối cảnh nhà ở đô thị.
Không gian sinh hoạt chung mở rộng theo chiều cao, trần gỗ uốn cong tạo cảm giác bao bọc nhẹ nhàng. Ánh sáng từ sân trong lan tỏa đều, làm nổi bật bề mặt vật liệu mộc mạc
Vật liệu và kết cấu đóng vai trò then chốt trong việc định hình tinh thần công trình. Bảy loại gỗ khác nhau được lựa chọn và xử lý để đạt đến một sắc độ thống nhất, mang lại cảm giác ấm áp, mộc mạc nhưng tinh tế.
Hệ khung thép kết hợp gỗ Takian cho phép tạo nên kết cấu mái không cột, vừa giải phóng không gian, vừa bộc lộ vẻ đẹp chân thực của kỹ thuật và tay nghề thủ công. Thay vì che giấu, kết cấu được thể hiện một cách tiết chế, để vật liệu tự kể câu chuyện của mình qua bề mặt, màu sắc và tỷ lệ.
>>> Xem thêm: Kết cấu dầm “công xôn” vươn 2,5m tạo trải nghiệm lơ lửng thú vị cho gia chủ tại phòng ngủ tầng 2
Bố cục trần cao gấp đôi giúp xóa nhòa ranh giới giữa tầng một và tầng hai. Hệ vách kính cong duy trì sự kết nối thị giác liên tục trong toàn bộ không gian
Nhìn từ tầng trên, ánh sáng và bóng cây tạo nên những lớp sáng - tối chuyển động trên sàn gỗ. Không gian thay đổi theo thời gian trong sự tĩnh lặng có chủ ý
Hốc ngồi hình tròn được khoét vào mảng tường gỗ như một khoảng dừng tĩnh lặng trong nhịp di chuyển. Hình khối bo cong, ánh sáng dịu và cây xanh phía sau tạo nên cảm giác khép kín vừa đủ
Kết cấu khung thép kết hợp gỗ Takian cho phép tạo mái không cột, giải phóng mặt bằng sử dụng. Vật liệu được để lộ vừa đủ, tự kể câu chuyện về kỹ thuật và tay nghề
Chi tiết mở tròn trên trần đưa ánh sáng tự nhiên xuống sâu vào lõi nhà. Cây xanh trở thành điểm neo thị giác trong không gian cao thoáng.
Tầng hai tổ chức như một không gian áp mái riêng tư, nơi đặt phòng ngủ chính và trưng bày các tác phẩm nghệ thuật. Dù đảm bảo sự tách biệt cần thiết, khu vực này vẫn duy trì mối liên hệ, kết nối gần gũi với sân trong trung tâm, giữ cho thiên nhiên luôn hiện diện trong tầm nhìn và sinh hoạt hàng ngày
Phòng ngủ chính mở tầm nhìn trực tiếp về sân trong trung tâm thông qua hệ vách kính cong. Thiên nhiên hiện diện trọn vẹn trong tầm mắt, nhưng vẫn giữ được sự kín đáo cần thiết
Không gian tầng 2 được tổ chức như một khu áp mái riêng tư, tách biệt khỏi sinh hoạt chung phía dưới. Trần gỗ cong và ánh sáng dịu tạo cảm giác yên tĩnh, phù hợp cho nghỉ ngơi dài hạn
Giường ngủ đặt thấp, bố cục gọn gàng để nhường chỗ cho ánh sáng và khoảng thở không gian. Vật liệu gỗ đồng nhất giúp không gian giữ cảm giác ấm áp và liền mạch
Các tác phẩm nghệ thuật được bố trí đan xen trong không gian ngủ như một phần của đời sống cá nhân. Ánh sáng tự nhiên chiếu qua lớp kính tạo nên những lớp bóng đổ mềm mại, thay đổi theo thời gian
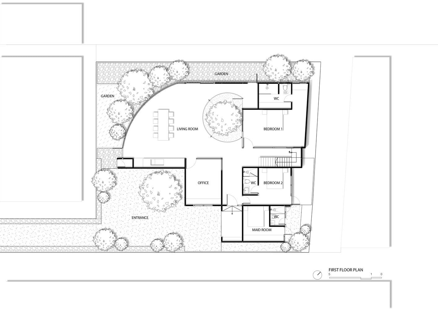
Các bản vẽ thiết kế nhà 2 tầng Terrarium House
>>> Xem thêm: Kết nối tầng 1 với sân vườn bên ngoài, nhà 2 tầng thay đổi hoàn toàn sau khi cải tạo
Giữa đô thị đông đúc, náo nhiệt, Terrarium House chọn cách lùi lại một bước, tạo nên thế giới hướng nội để kiến trúc, thiên nhiên và con người cùng tồn tại trong trạng thái cân bằng. Ở đó, ngôi nhà 2 tầng hiện diện như một ốc đảo vượt thời gian, nơi nhịp sống chậm lại, ánh sáng được cảm nhận rõ ràng hơn và sự tĩnh lặng trở thành một điểm nhấn tuyệt vời.
Cùng khám phá thêm nhiều ngôi nhà độc đáo tại Chuyện nhà.
Thông tin công trình:
Tên ngôi nhà: Terrarium House
Diện tích thực tế (m2): 450
Năm hoàn thành: 2025
Đơn vị thiết kế: Unknown Surface Studio
Hình ảnh: Rungkit Charoenwat
Địa điểm: Bangkok, Thái Lan
Số tầng: 2
Số phòng ngủ: 3
Loại nhà: Nhà phố
Nguồn: Archdaily
*Để lại thông tin trong box dưới đây, Happynest sẽ giúp bạn kết nối đơn vị thiết kế - thi công phù hợp và nhanh chóng nhất.










































































































