Nhà gỗ hơn 60 năm tuổi tại Kamakura được cải tạo để sống chậm cùng thời gian

    Cập nhật ngày 29/01/2026, lúc 10:00434 lượt xem
    • Tên ngôi nhà
      Kajiwara House
    • Năm hoàn thành
      2022
    • Thiết kế
      Roovice
    • Chụp ảnh
      Akira Nakamura

    Nằm trong một khu dân cư yên tĩnh ở Kamakura, gần biển và bao quanh bởi đồi thấp, ngôi nhà gỗ 2 tầng được xây từ thập niên 1960 đã được cải tạo lại cho một cặp đôi làm sáng tạo và hai chú mèo.

    Thay vì phá bỏ để làm mới hoàn toàn, nhóm thiết kế Roovice chọn cách tiếp cận nhẹ nhàng: giữ lại những gì còn tốt, chỉnh sửa vừa đủ để phù hợp với lối sống hiện tại. Công trình hoàn thành năm 2022, là một ví dụ tiêu biểu cho cách cải tạo nhà cũ theo tinh thần sống chậm, tôn trọng thời gian và những giá trị đã có sẵn.

    Những điều có thể học hỏi từ nhà gỗ 2 tầng

    • Cách cải tạo nhà cũ mà không cần đập bỏ hay làm mới toàn bộ.

    • Tận dụng ánh sáng tự nhiên và kết nối với vườn bằng cửa trượt truyền thống.

    • Kết hợp vật liệu cũ và mới để kể câu chuyện thời gian của ngôi nhà.

    • Tổ chức không gian linh hoạt, phù hợp với lối sống sáng tạo và nuôi thú cưng.

    • Chấp nhận sự “không hoàn hảo” như một phần của trải nghiệm sống lâu dài.

    Ý tưởng cải tạo: Không làm mới ngôi nhà, mà làm cho nó “sống lại”

    Khi bắt đầu dự án, gia chủ không mong muốn một ngôi nhà hiện đại, bóng bẩy hay hoàn hảo theo tiêu chuẩn mới. Điều họ tìm kiếm là khôi phục lại cảm giác bình yên vốn có của ngôi nhà cũ, đồng thời khiến nó phù hợp hơn với nhịp sống hiện tại.

    Ngôi nhà được xây dựng cách đây hơn 60 năm, mang đặc trưng rõ rệt của nhà gỗ Nhật Bản thời kỳ cũ: không gian chia nhỏ, nhiều chi tiết thủ công, vật liệu tự nhiên và tỷ lệ vừa phải. Thay vì thay đổi cấu trúc, nhóm thiết kế lựa chọn cách làm chậm rãi: giữ nguyên khung nhà, giữ lại những chi tiết còn sử dụng tốt, chỉ can thiệp ở những điểm thực sự cần thiết.

    Cách tiếp cận này giúp ngôi nhà không bị mất đi “ký ức”, đồng thời tránh cảm giác gượng ép khi đưa các yếu tố hiện đại vào một công trình cũ.

    Toàn cảnh ngôi nhà gỗ 2 tầng nhìn từ khu vườn, với mặt đứng sơn đen tạo cảm giác trầm lắng và kín đáo. Giải pháp giữ nguyên hình khối giúp công trình hòa hợp với khu dân cư xung quanh mà không bị lạc lõng

    Không gian sinh hoạt chung sử dụng sàn gỗ, trần gỗ và cột gỗ nguyên bản, tạo cảm giác ấm áp và gần gũi. Việc giữ kết cấu cũ giúp ngôi nhà giữ được ký ức thời gian, đồng thời tạo nền trung tính cho đồ nội thất hiện đại

    Hệ cửa trượt kính lớn mở ra khu vườn, đưa ánh sáng tự nhiên và cảnh xanh vào không gian bên trong. Thiết kế này giúp phòng sinh hoạt luôn thoáng đãng và tạo mối liên kết chặt chẽ giữa trong nhà và ngoài trời

    >>> Xem thêm: Cải tạo nhà gỗ hơn 60 năm tuổi thành nhà 2 tầng hình chiếc mũ độc đáo

    Tổ chức lại không gian tầng trệt – Mở rộng để sống thoải mái hơn

    Lối vào nhà: Một chi tiết nhỏ tạo nên cảm giác rất riêng

    Ngay từ lối vào, ngôi nhà đã để lại ấn tượng khác biệt. Giữa nền gạch đỏ sẫm và bậc tam cấp bê tông là một dải sỏi trắng nhỏ, được giữ nguyên từ thiết kế ban đầu. Khi bước qua, sỏi khẽ chuyển động dưới chân, tạo cảm giác rất nhẹ nhưng dễ nhớ.

    Thay vì cố định hay loại bỏ chi tiết này, nhóm thiết kế quyết định giữ lại như một phần ký ức của ngôi nhà. Các mảng tường gỗ cũ đã bong tróc được thay mới để đảm bảo an toàn và thẩm mỹ. Gần cửa ra vào, một hàng rào gỗ đơn giản được bổ sung, giúp gia chủ yên tâm hơn mỗi khi mở cửa mà không lo mèo chạy ra ngoài.

    Lối đi bên hông nhà được bao bọc bởi hàng tre và tường thấp, tạo cảm giác kín đáo và yên tĩnh. Đây là giải pháp cảnh quan đơn giản nhưng hiệu quả, giúp ngôi nhà tách khỏi nhịp sống bên ngoài

    Cửa vào nhà sơn đen kết hợp với khung gỗ và song đứng tạo cảm giác chắc chắn, trầm lắng. Việc thống nhất màu sắc mặt tiền giúp ngôi nhà cũ có diện mạo gọn gàng mà không đánh mất bản sắc ban đầu

    Cận cảnh chi tiết lối vào với nền gạch đỏ sẫm, bậc bê tông và dải sỏi trắng đặt giữa. Việc giữ nguyên chi tiết sỏi rời giúp tạo cảm giác chuyển tiếp mềm mại giữa trong và ngoài nhà, đồng thời lưu giữ dấu ấn thủ công của ngôi nhà cũ

    Khu vực tiền sảnh với sàn gạch thấp hơn và sàn gỗ nâng cao phía trong, phân tách rõ ràng giữa trong và ngoài nhà. Cách xử lý cao độ này giúp giữ sạch không gian sống mà không cần thêm vách ngăn

    Một góc nhỏ gần cửa được tận dụng làm nơi để xe đạp và trưng bày đồ cá nhân. Giải pháp này biến khu vực phụ thành không gian sinh hoạt thực tế, phản ánh lối sống hằng ngày của gia chủ

    Không gian trung tâm tầng trệt cho thấy rõ các lớp vật liệu cũ và mới cùng tồn tại song song. Việc không che giấu dấu vết cải tạo giúp ngôi nhà kể câu chuyện về thời gian một cách tự nhiên

    Phòng làm việc: Tận dụng cái cũ để phục vụ nhu cầu mới

    Phòng đầu tiên ở tầng trệt được chuyển thành không gian làm việc và studio. Điểm đáng chú ý là hệ cửa trượt kính - vốn thuộc về tủ âm tường cũ - không bị tháo bỏ mà được sửa chữa và sử dụng lại.

    Việc giữ lại những cánh cửa này không chỉ giúp tiết kiệm chi phí, mà còn tạo ra một không gian làm việc mang cảm giác thân thuộc, không quá tách biệt khỏi phần còn lại của ngôi nhà. Đây là cách xử lý rất phù hợp với những người làm sáng tạo, cần sự yên tĩnh nhưng không muốn bị cô lập hoàn toàn.

    Phòng làm việc được bố trí gọn gàng với bàn gỗ đặt sát cửa sổ, tận dụng ánh sáng tự nhiên. Hệ tủ kính mờ cũ được giữ lại làm không gian lưu trữ, giúp căn phòng vừa làm việc vừa mang cảm giác sinh hoạt quen thuộc

    Không gian làm việc nhìn từ góc khác cho thấy sự kết hợp giữa cửa gỗ, kính mờ và rèm vải mỏng. Giải pháp này giúp ánh sáng được lọc nhẹ, đảm bảo riêng tư mà không làm căn phòng trở nên tối

    Không gian sinh hoạt chung: Gộp phòng để có nhiều ánh sáng hơn

    Ở phía sau nhà, 2 phòng nhỏ trước đây được mở thông để tạo thành một không gian sinh hoạt chung rộng rãi hơn. Nhờ hệ cửa sổ lớn hướng ra vườn, khu vực này luôn tràn ngập ánh sáng tự nhiên, tạo cảm giác thoáng đãng và dễ chịu suốt cả ngày.

    Đây là nơi gia chủ dành nhiều thời gian nhất cho sinh hoạt hằng ngày, đọc sách, nghỉ ngơi, tiếp khách. Đồng thời, đây cũng là “góc yêu thích” của những chú mèo, thường xuyên nằm phơi nắng bên cửa sổ nhìn ra sân cỏ.

    Không gian sinh hoạt được tổ chức mở, kết nối phòng khách, khu trưng bày đồ dùng và khu ăn uống. Cách bố trí này giúp diện tích nhỏ trở nên linh hoạt, phù hợp sinh hoạt hằng ngày của gia đình

    Phòng khách hướng ra vườn với ánh nắng chiếu trực tiếp vào buổi sáng, tạo cảm giác ấm áp và yên bình. Đây cũng là khu vực được thiết kế để con người và thú cưng cùng sử dụng thoải mái

    Góc nhìn từ phòng khách cho thấy sự liền mạch giữa các không gian nhờ sàn gỗ đồng nhất và cửa trượt truyền thống. Việc hạn chế tường kín giúp ánh sáng lan tỏa đều khắp ngôi nhà

    Khu bàn ăn đặt gần cửa sổ lớn, tận dụng tối đa ánh sáng tự nhiên và tầm nhìn ra vườn. Nội thất gỗ đơn giản giúp không gian ăn uống trở nên nhẹ nhàng và dễ sử dụng mỗi ngày

    Khu vực bàn ăn sử dụng bàn ghế gỗ đơn giản, đặt dưới đèn thả ánh sáng dịu để tạo cảm giác ấm cúng. Việc giữ cửa trượt shoji phía sau giúp không gian ăn uống luôn linh hoạt, có thể mở rộng hoặc khép kín tùy nhu cầu

    Một khu vực nghỉ ngơi nhỏ được tạo ra giữa các cột gỗ, phù hợp cho việc đọc sách hoặc thư giãn. Giải pháp này tận dụng những khoảng không trung gian thay vì bỏ trống

    Tủ trưng bày đồ dùng và vật kỷ niệm được đặt giữa không gian sinh hoạt, vừa lưu trữ vừa tạo điểm nhấn. Cách bố trí này giúp đồ đạc trở thành một phần của đời sống hằng ngày, không mang tính trưng bày khô cứng

    Tủ kính cong trưng bày đồ thủy tinh và bát đĩa được đặt sát cửa trượt shoji. Việc sử dụng tủ kính giúp đồ dùng luôn trong tầm mắt, khuyến khích sử dụng hằng ngày thay vì cất giấu

    Đèn trần dạng phẳng được gắn trực tiếp lên trần vải, tạo ánh sáng dịu và đồng đều. Cách chiếu sáng này phù hợp với nhà cũ, không làm nổi bật khuyết điểm của trần theo thời gian

    Hành lang engawa: Giữ nguyên để kết nối các không gian

    Dọc theo hành lang engawa - một đặc trưng quen thuộc trong nhà Nhật - các vách shoji và trần gỗ cũ được giữ lại gần như nguyên vẹn. Những phần trần mới, nơi các không gian được kết nối sau cải tạo, được hoàn thiện bằng gỗ mới với màu sắc và bề mặt tương đồng.

    Nhờ đó, người ở vẫn có thể nhận ra đâu là phần cũ, đâu là phần mới, nhưng tổng thể không bị rời rạc. Việc sử dụng cùng một loại sàn gỗ cho toàn bộ tầng trệt cũng giúp các không gian liên kết mượt mà, không tạo cảm giác chia cắt.

    Hành lang gỗ chạy dọc ngôi nhà kết nối các không gian sinh hoạt, với trần và sàn gỗ giữ nguyên từ kết cấu cũ. Giải pháp duy trì hành lang dài giúp ánh sáng và gió lưu thông tự nhiên, đồng thời giữ nhịp di chuyển quen thuộc của nhà Nhật truyền thống

    Hành lang nhìn ra vườn với hệ cửa kính trượt mở rộng tối đa tầm nhìn ra thảm cỏ bên ngoài. Thiết kế này giúp thiên nhiên trở thành một phần của không gian sống, làm dịu nhịp sinh hoạt hằng ngày

    Lối đi trong nhà được giữ nguyên tỷ lệ hẹp và dài, đặc trưng của nhà gỗ Nhật Bản cũ. Việc chỉ cải thiện ánh sáng và bề mặt sàn giúp không gian vẫn giữ được cảm giác thời gian mà không bị nặng nề

    >>> Xem thêm: Cải tạo nhà gỗ cũ thêm 2 phòng ngủ: Giải pháp tối ưu công năng mà vẫn giữ trọn nét xưa

    Vật liệu và chi tiết – Khi cũ và mới cùng tồn tại một cách tự nhiên

    Phòng tắm: Không che giấu sự khác biệt

    Phòng tắm được nới rộng nhẹ để sử dụng thuận tiện hơn. Các viên gạch tường cũ được giữ lại tối đa, kể cả khi màu sắc không còn đồng đều. Ở những khu vực không tìm được gạch thay thế tương tự, nhóm thiết kế chủ động dùng gạch trắng mới.

    Thay vì cố “giả cũ”, cách làm này giúp sự khác biệt giữa các lớp thời gian trở nên rõ ràng và trung thực. Sàn phòng tắm vẫn sử dụng gạch tamaira nguyên bản, mang lại cảm giác bề mặt gồ ghề nhẹ, giàu chiều sâu và rất đặc trưng.

    Phòng bếp: Chấp nhận sự thay đổi theo năm tháng

    Hệ tủ bếp âm tường cũ được làm mới và tiếp tục sử dụng. Chỉ phần đã xuống cấp hoặc không còn phù hợp mới được thay thế bằng một quầy gỗ đơn giản, đặt đóng riêng.

    Theo mong muốn của gia chủ, sàn bếp được hoàn thiện bằng vữa xi măng. Nhóm thiết kế đã trao đổi rõ rằng loại sàn này có thể xuất hiện vết nứt theo thời gian. Tuy nhiên, gia chủ chấp nhận điều đó như một phần của câu chuyện sống trong ngôi nhà - nơi mọi thứ không cần hoàn hảo, nhưng chân thật và có dấu vết của thời gian.

    Hệ cửa trượt shoji mở ra trục nhìn thẳng vào khu bếp phía sau, tạo chiều sâu cho không gian. Cách tổ chức này giúp các phòng liên kết bằng ánh nhìn thay vì tường kín, khiến ngôi nhà nhỏ trở nên thoáng hơn

    Góc nhìn vào bếp cho thấy bàn thao tác cũ được giữ lại và sử dụng như đảo bếp phụ. Việc tái sử dụng đồ nội thất cũ giúp tiết kiệm chi phí và duy trì cảm giác quen thuộc trong sinh hoạt hằng ngày

    Khu bếp nhìn từ phòng ăn với hệ tủ gỗ cũ, mặt bàn inox và gạch ốp xanh nhạt. Giải pháp chỉ thay mới phần cần thiết giúp căn bếp vận hành tốt hơn mà vẫn giữ được không khí bếp xưa

    Toàn cảnh bếp cho thấy sự pha trộn giữa đồ dùng hiện đại và hệ tủ lưu trữ cũ. Việc giữ bố cục quen thuộc giúp người sử dụng dễ thích nghi và không cảm thấy bếp bị “làm mới quá mức”

    Cận cảnh hệ tủ kính mờ lưu trữ đồ dùng nhà bếp, phía trong vẫn thấy rõ dấu vết thời gian. Thiết kế này vừa đảm bảo công năng, vừa cho phép người ở cảm nhận được chiều sâu lịch sử của ngôi nhà

    Góc bếp với kệ mở trưng bày bát đĩa và đồ dùng hằng ngày, kết hợp ánh sáng đèn thả dịu nhẹ. Cách sắp xếp này biến đồ dùng sinh hoạt thành một phần của không gian sống, không mang tính trưng bày khô cứng

    Cầu thang gỗ dẫn lên tầng trên với trần tre và cửa sổ lấy sáng tự nhiên. Việc giữ nguyên hình thức cầu thang cũ giúp duy trì nhịp di chuyển quen thuộc và cảm giác ấm áp khi lên xuống mỗi ngày

    Không gian tầng trên – Đơn giản để nghỉ ngơi

    Trên tầng 2, phòng ngủ lớn được kết hợp từ 2 phòng nhỏ trước đây. Việc này giúp không gian trở nên thoáng hơn, đón nhiều ánh sáng tự nhiên từ các cửa sổ rộng.

    Tủ oshiire cũ của mỗi phòng được kết hợp thành một hệ lưu trữ dài, đủ dùng cho sinh hoạt hằng ngày mà không cần bổ sung thêm tủ mới. Cách tổ chức này giữ được tinh thần nhà Nhật truyền thống, đồng thời phù hợp với lối sống tối giản của gia chủ.

    Phòng ngủ tầng trên được mở rộng từ 2 phòng nhỏ, với sàn tatami, giường thấp và ánh sáng tự nhiên tràn qua nhiều ô cửa sổ. Việc gộp không gian giúp phòng ngủ trở nên thoáng đãng, phù hợp cho sinh hoạt hằng ngày thay vì chỉ dùng để ngủ

    Giường ngủ đặt sát hệ kệ gỗ âm tường, nơi cất giữ đồ đạc trong những giỏ mây đơn giản. Giải pháp lưu trữ mở này giúp giảm cảm giác nặng nề và giữ cho phòng ngủ luôn gọn gàng, dễ sử dụng

    Rèm vải trắng mỏng được dùng để phân tách nhẹ nhàng giữa các khu vực trong phòng ngủ. Cách ngăn này linh hoạt hơn tường cứng, cho phép không gian thay đổi theo nhu cầu sinh hoạt

    Khu tủ quần áo được giữ nguyên cấu trúc cũ, chỉ thay đổi cách sắp xếp và bổ sung rèm che. Việc không xây mới giúp tiết kiệm chi phí và vẫn giữ được cảm giác quen thuộc của ngôi nhà gỗ lâu năm

    Góc rửa mặt nhỏ với bồn inox, gạch ốp tường sáng màu và cửa sổ lấy sáng tự nhiên. Giải pháp giữ nguyên vật liệu cũ giúp không gian vẫn sáng sủa và dễ vệ sinh mà không cần cải tạo lớn

    >>> Xem thêm: Cải tạo nhà 1 tầng cũ kỹ thành nhà vườn đa lớp cho gia đình 4 người, ai xem cũng muốn ở ngay

    Ngôi nhà chưa kết thúc mà tiếp tục “lớn lên” theo thời gian

    Dù công trình đã hoàn thành, ngôi nhà không được xem là “xong”. Gia chủ dự định sẽ tự hoàn thiện các mảng tường bằng vữa shikkui trong tương lai, từng chút một, theo thời gian và cảm hứng sống.

    Chính điều đó khiến ngôi nhà không đứng yên ở một thời điểm, mà tiếp tục thay đổi cùng người ở. Không gian vì thế trở nên ấm áp hơn, mang đậm dấu ấn cá nhân và nhịp sống chậm rãi.

    Khu giặt đồ được đặt gọn trong không gian phụ, với máy giặt hiện đại kết hợp tủ gỗ cũ và trần tre đan. Giải pháp giữ nguyên cấu trúc giúp khu vực kỹ thuật vẫn hài hòa với tổng thể nhà ở

    Không gian vệ sinh nhỏ được cải tạo gọn gàng với bồn cầu hiện đại đặt trên nền bê tông mộc. Cách xử lý tối giản giúp đảm bảo tiện nghi mới mà không phá vỡ tinh thần nhà gỗ truyền thống

    Khoảnh khắc sinh hoạt thường ngày của gia chủ và thú cưng trong phòng khách với sàn gỗ ấm áp. Không gian được thiết kế đủ đơn giản để cuộc sống tự nhiên diễn ra, thay vì mang tính trưng bày

    Góc nhỏ với tủ gỗ thấp và khu vực ăn uống dành riêng cho mèo, đặt ngay lối đi. Việc bố trí không gian cho thú cưng cho thấy ngôi nhà được thiết kế xoay quanh đời sống thực tế của người ở

    Không gian ăn uống nơi gia chủ tương tác cùng mèo, với bàn gỗ tròn và đèn treo nhẹ nhàng phía trên. Cách sắp xếp này tạo cảm giác ấm cúng, giúp bữa ăn trở thành một phần gắn kết của đời sống gia đình

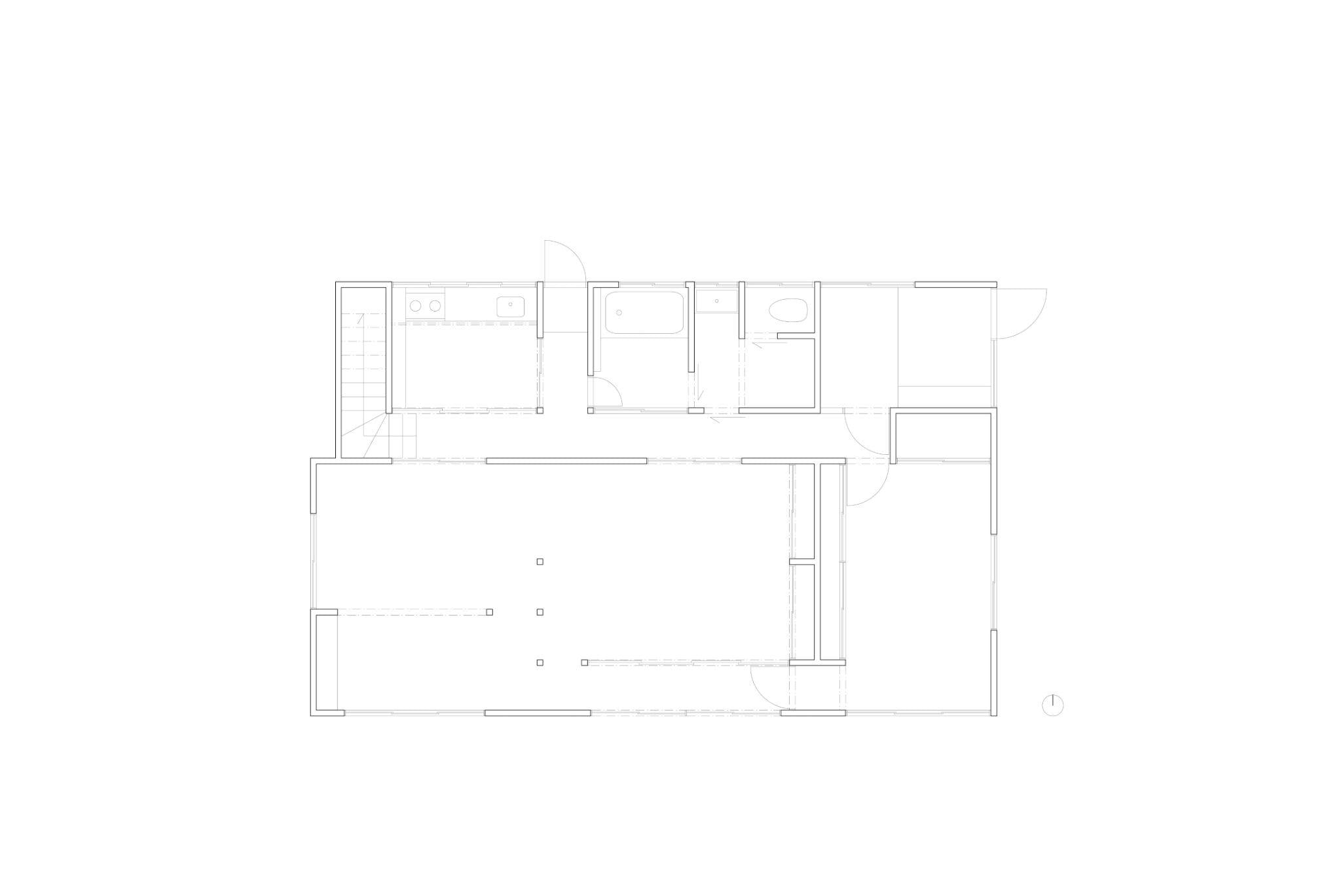
    Bản vẽ mặt bằng tầng trệt sau cải tạo cho thấy không gian sinh hoạt chung được mở rộng, kết nối các phòng nhỏ thành một khu vực lớn hơn. Cách tổ chức này giúp ngôi nhà đón nhiều ánh sáng tự nhiên và phù hợp với sinh hoạt hằng ngày của gia đình

    Mặt bằng tầng 2 thể hiện việc gộp hai phòng nhỏ thành một phòng ngủ lớn, với khu lưu trữ chạy dọc theo tường. Giải pháp này giúp không gian nghỉ ngơi trở nên thoáng hơn và giảm cảm giác chia cắt như bố cục cũ

    Bản vẽ mặt bằng tầng trệt trước cải tạo cho thấy nhiều phòng nhỏ, phân chia rõ ràng và ít liên kết với nhau. Đây là bố cục phổ biến của nhà gỗ Nhật Bản cũ, nhưng không còn phù hợp với lối sống hiện đại

    So sánh mặt bằng trước và sau cải tạo cho thấy các vách ngăn không cần thiết đã được loại bỏ để tạo dòng chảy không gian liền mạch. Việc can thiệp có chọn lọc giúp ngôi nhà thay đổi cách sử dụng mà vẫn giữ được cấu trúc ban đầu.

    Ngôi nhà gỗ tại Kamakura cho thấy một cách tiếp cận khác trong cải tạo nhà ở: không chạy theo sự hoàn hảo, mà trân trọng quá trình sống và những giá trị sẵn có. Bằng việc giữ lại cấu trúc, vật liệu và ký ức không gian, ngôi nhà trở thành nơi thời gian được cảm nhận rõ ràng, chứ không bị xóa bỏ.

    Cùng khám phá thêm nhiều không gian sống giàu cảm xúc và chiều sâu tại chuyên mục Chuyện nhà.

    Thông tin công trình

    Tên ngôi nhà: Kajiwara House

    Năm hoàn thành: 2022

    Đơn vị thiết kế: Roovice

    Đơn vị chụp ảnh: Akira Nakamura

    Địa điểm: Kamakura, Nhật Bản

    Phong cách thiết kế: Nhật Bản, Wabi-Sabi

    Số tầng: 2

    Số phòng ngủ: 1

    Loại nhà: Nhà vườn

    Nguồn: archilovers

    *Để lại thông tin trong box dưới đây, Happynest sẽ giúp bạn kết nối đơn vị thiết kế - thi công phù hợp và nhanh chóng nhất.

    Phan Thảo VyTheo dõi

    Bình luận

    Hãy đăng nhập và trở thành người đầu tiên bình luận về bài viết này!

    Bài đăng liên quan

    Chuyện nhà

    Xem tất cả

    Kho kiến thức

    Xem tất cả

    Đời sống

    Xem tất cả

    Xu hướng

    Xem tất cả

    Sự kiện

    Xem tất cả

    HappynestTV

    Xem tất cả

    Thảo luận

    Xem tất cả

    Ăn - Chơi

    Xem tất cả
    • 0
    • 0
    • 0
    • 0